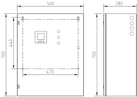
消防應急照明和疏散指示裝置
消防應急照明和疏散指示系統是安科瑞自主研發的集監視、報警、管理于一體的計算機測控系統,該系統通過控制器接收火災報警系統的信號,火災發生時,控制器根據探頭探測的火源發生點及煙霧彌漫方向,計算逃生路線,再將信息指令發布到每個終端,通過分配電裝置將集中電源箱的電分配給消防應急照明燈具和消防應急標志燈具,提供燈具與控制器之間的橋梁作用,燈具在收到指令后自動開始工作,如頻閃、變向、開、滅燈等工作,實時指示安全的逃生路線。
消防應急照明和疏散指示系統是安科瑞自主研發的集監視、報警、管理于一體的計算機測控系統,該系統通過控制器接收火災報警系統的信號,火災發生時,控制器根據探頭探測的火源發生點及煙霧彌漫方向,計算逃生路線,再將信息指令發布到每個終端,通過分配電裝置將集中電源箱的電分配給消防應急照明燈具和消防應急標志燈具,提供燈具與控制器之間的橋梁作用,燈具在收到指令后自動開始工作,如頻閃、變向、開、滅燈等工作,實時指示安全的逃生路線。

|
類別 |
描述 |
|
輸入電源 |
AC220V/50Hz, |
|
備用電源 |
閥控密封式鉛酸蓄電池,容量12V/12Ah,2節 |
|
應急時間 |
應急時間;切換時間 |
|
配置 |
工業PC板,2G內存,32G固態硬盤存儲 |
|
顯示操作 |
17寸液晶顯示器,LED指示燈; 人機接口為鼠標鍵盤,按鍵; |
|
打印機 |
熱敏打印機 |
|
下行總線 |
4個CAN總線:連接分配電裝置與集中電源 |
|
上行總線 |
1個CAN:預留,可用于連接火災報警控制器或其他用途; |
|
外殼材質 |
金屬 |
|
防護等級 |
IP30 |
|
運行溫度 |
0℃-45℃ |
|
類別 |
描述 |
|
輸入電源 |
AC220V/50Hz, |
|
輸出電源 |
DC36V,0.5kW |
|
備用電源 |
閥控密封式鉛酸蓄電池,容量12V/38Ah,4節 |
|
本機功耗 |
10W |
|
應急時間 |
應急時間;切換時間 |
|
顯示 |
點陣液晶顯示,LED指示燈 |
|
操作方式 |
按鍵,開關操作 |
|
通訊總線 |
上行CAN |
|
外殼材質 |
金屬 |
|
防護等級 |
IP30 |
|
運行溫度 |
-10℃-45℃ |
|
安裝方式 |
壁掛 |
應急照明分配電裝置
類別
描述
輸入電源
DC36V,0.5kW
輸出電源
回路輸出電壓DC36V,電流≤2A
通訊回路
5回路
本機功耗
10W
應急時間
應急時間;切換時間
顯示
LED指示(主電、應急、故障)
通訊總線
上行CAN/下行ABUS
外殼材質
金屬
防護等級
IP30
運行溫度
-10℃-45℃
安裝方式
壁掛
|
名稱 |
型號 |
內容 |
安裝方式 |
顯示 |
|
集中電源集中控制型消防應急標志燈具 |
A-BLJC-2OEⅡ1W-A420 |
安全出口 |
吊掛 |
雙面 |
|
A-BLJC-2LEⅡ1W-A420L |
左向指示 |
|||
|
A-BLJC-2LREⅡ1W-A420LR |
雙向指示 |
|||
|
A-BLJC-1OEⅡ0.5W-A400 |
安全出口 |
單面 |
||
|
A-BLJC-1LEⅡ0.5W-A400L |
左向指示 |
|||
|
A-BLJC-1REⅡ0.5W-A400R |
右向指示 |
|||
|
A-BLJC-1LREⅡ0.5W-A400LR |
雙向指示 |
|||
|
A-BLJC-1OEⅡ0.7W-A400F |
樓層指示 |
|||
|
A-BLJC-1OEⅡ0.5W-A401 |
安全出口 |
壁裝 |
||
|
A-BLJC-1LEⅡ0.5W-A401L |
左向指示 |
|||
|
A-BLJC-1REⅡ0.5W-A401R |
右向指示 |
|||
|
A-BLJC-1LREⅡ0.5W-A401LR |
雙向指示 |
|||
|
A-BLJC-1OEⅡ0.7W-A401F |
樓層指示 |
|||
|
A-BLJC-LEⅠ0.5W-A500L |
單向指示 |
地埋 |
||
|
A-BLJC-LREⅠ0.5W-A500LR |
雙向指示 |
|||
|
集中電源集中控制型消防應急照明燈具 |
A-ZLJC-E3W-A600 |
照明 |
壁裝 |
/ |
|
A-ZLJC-E3W-A601 |
嵌頂 |
/ |
||
|
A-ZLJC-E6W-A602 |
/ |
應急照明分配電裝置
